Обратный звонок
Режим работы:
Обработка заказов с 09:00 до 18:00 по будням

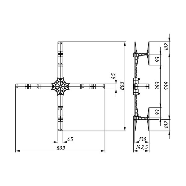
Устройство для подвеса оптических муфт и запаса оптического кабеля устанавливается на опорах и столбах с помощью монтажной ленты. Такое устройство позволяет надежно закрепить муфту оптическую и хранить достаточный метраж запаса кабеля оптического. (УПМК).
| Габаритные размеры, мм | 803×803×143 |
| Единица измерения | шт |
| Материал | УФ стойкий полимер |
| Вес | 1.5 кг |
| Цвет | серый |